
mobile planet
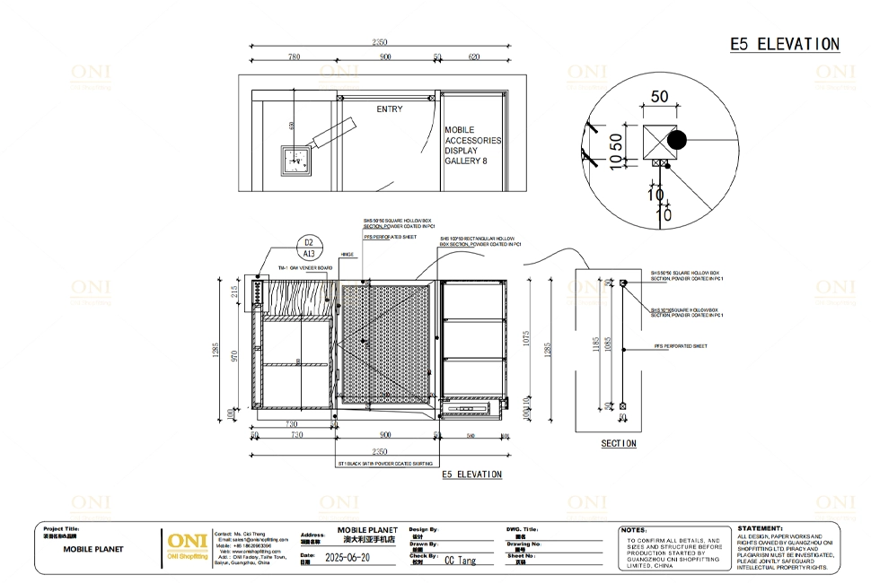
This phone repair kiosk project exudes a high-end and stylish modern atmosphere, with display cabinets and service facilities carefully planned: Transparent glass display cabinets paired with layered display areas present various mobile phone accessories in an orderly and exquisite manner; complemented by warm wood texture and embedded lighting, the exclusive repair workstation layout is clear, adapting to the open and bright mall space. Every accessory can fully show its detailed texture, while the neat and professional repair area also creates a pleasant consumption environment for customers, effectively stimulating their willingness to consult for repairs and purchase accessories.
Share
Contact us quickly
Contact us to get free unique design! Our design team will make customized design for your shop/showroom/kiosk based on your requirements and budget!






































