Australia GG Commercial Space Full-Case Customization & Renovation Project
CUSTOMER 3D RENDERING
Show GG commercial space layout & style, core areas like reception desks/booths, conveying functional & aesthetic demands.






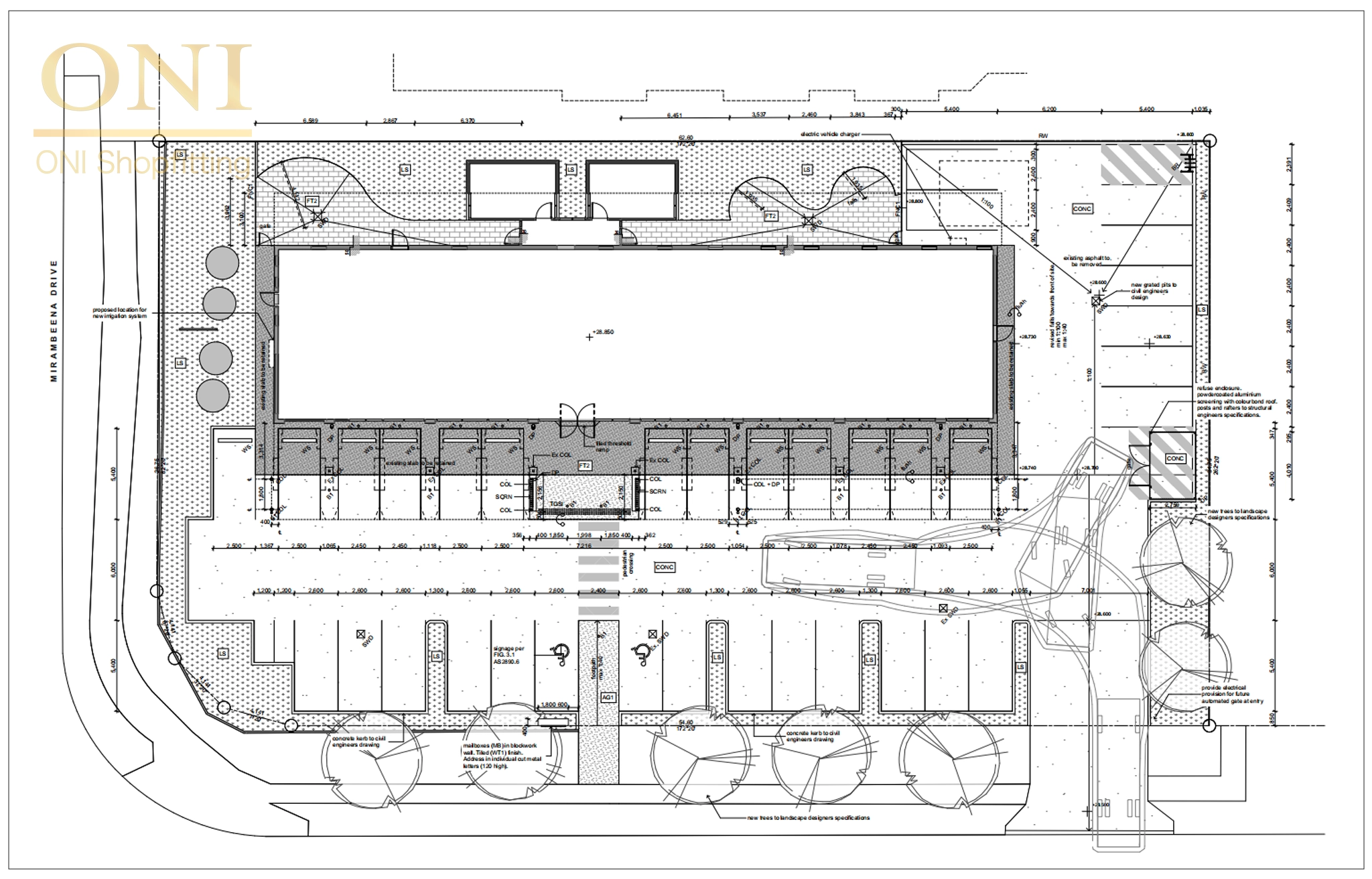
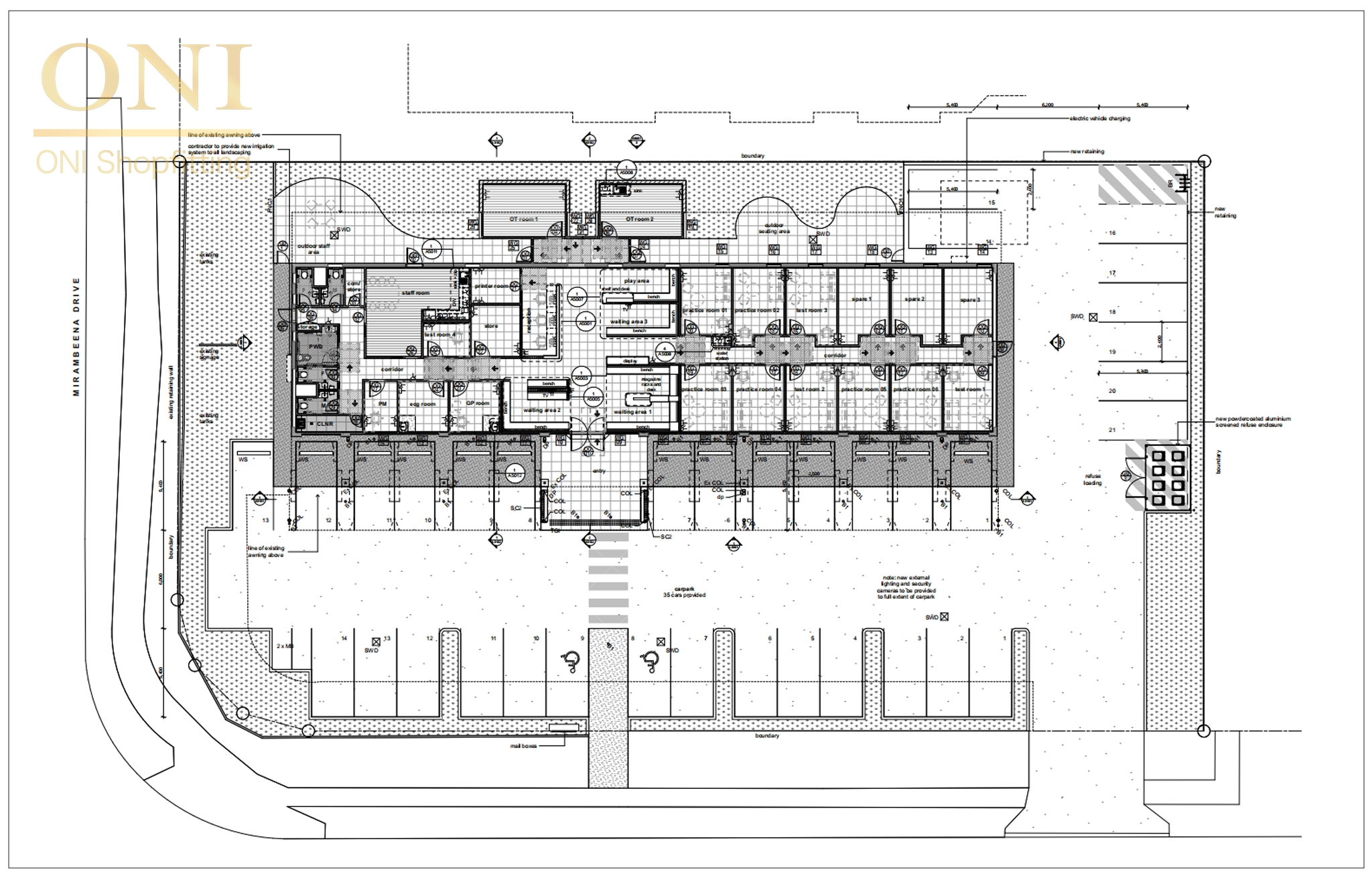
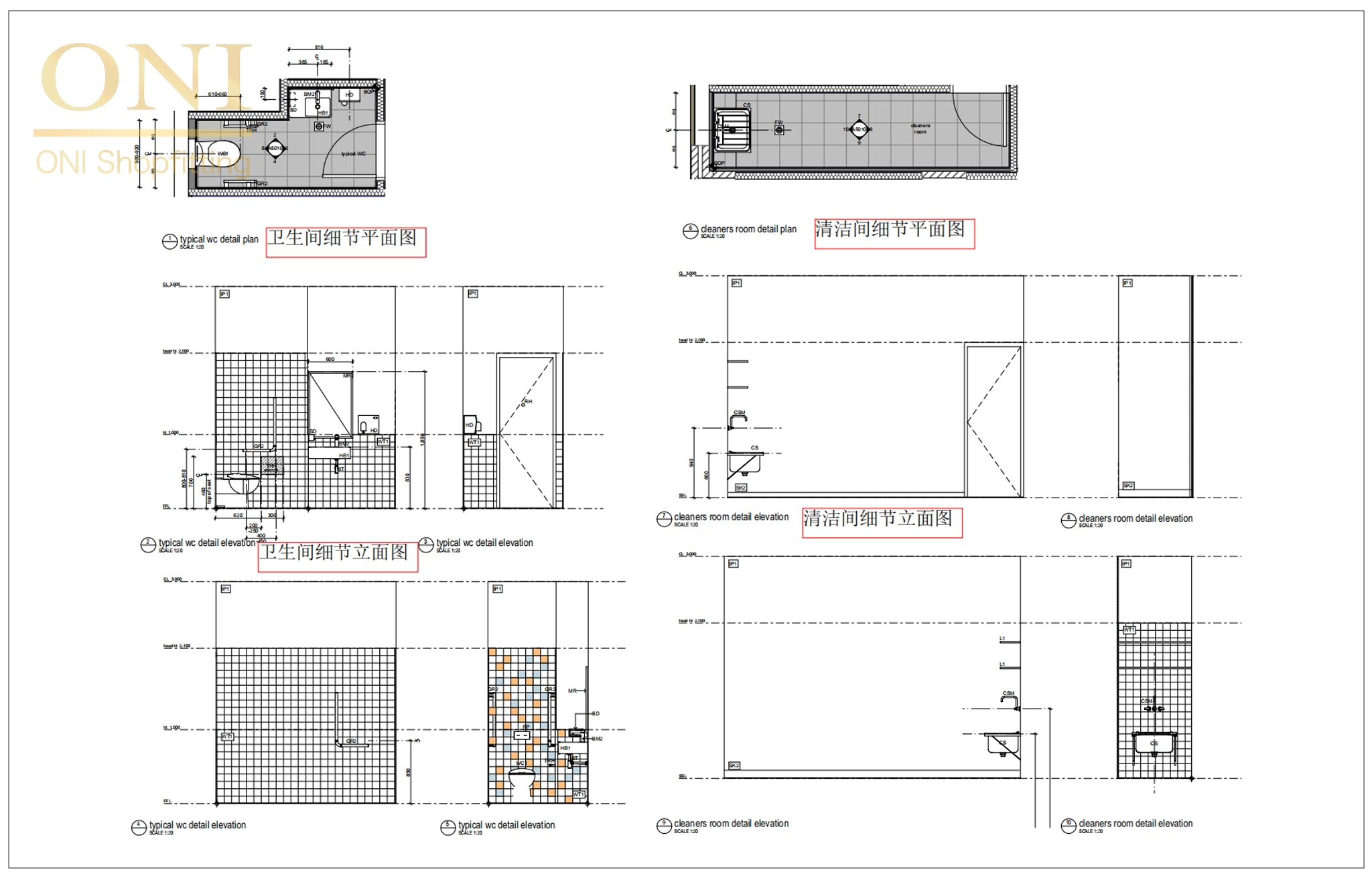
CUSTOMER DRAWINGS
Selected client-provided drawings of reception desks, cabinets, PWD-compliant bathrooms, clarifying original functional planning.





OUR 3D RENDERING








OUR GENERATED DRAWINGS
Optimized production drawings covering booth structure, cabinet assembly, vanity technology, realizing design-to-mass-production transformation.









PRODUCTION INSPECTION PHOTOS
Focus on fireproof board splicing, marble countertops, powder-coated aluminum, showing Australian standard materials & production control.











PHOTOS OF CONTAINER LOADING
Record anti-damage packaging, furniture fixation, container loading, highlighting overseas transportation protection capabilities.


FINAL INSTALLATION PHOTOS
Client’s Installation Photos: Present reception desk adaptation, booth on-site installation, verifying full-process delivery results.



